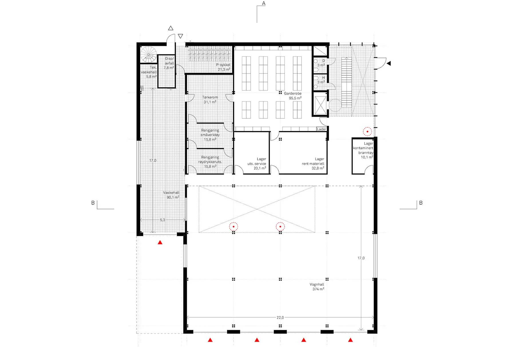
Sentrum Brannstasjon
Konkurransebidrag for ny Brannstasjon i Bjørvika.
Sted: Bjørvika, Oslo
År: 2020
Status: Konkurranse
Samarbeid med Quique Bayarri (https://qbayarri.com)
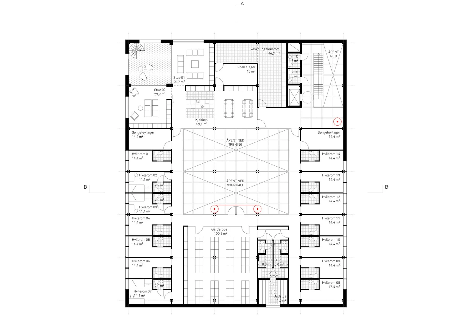
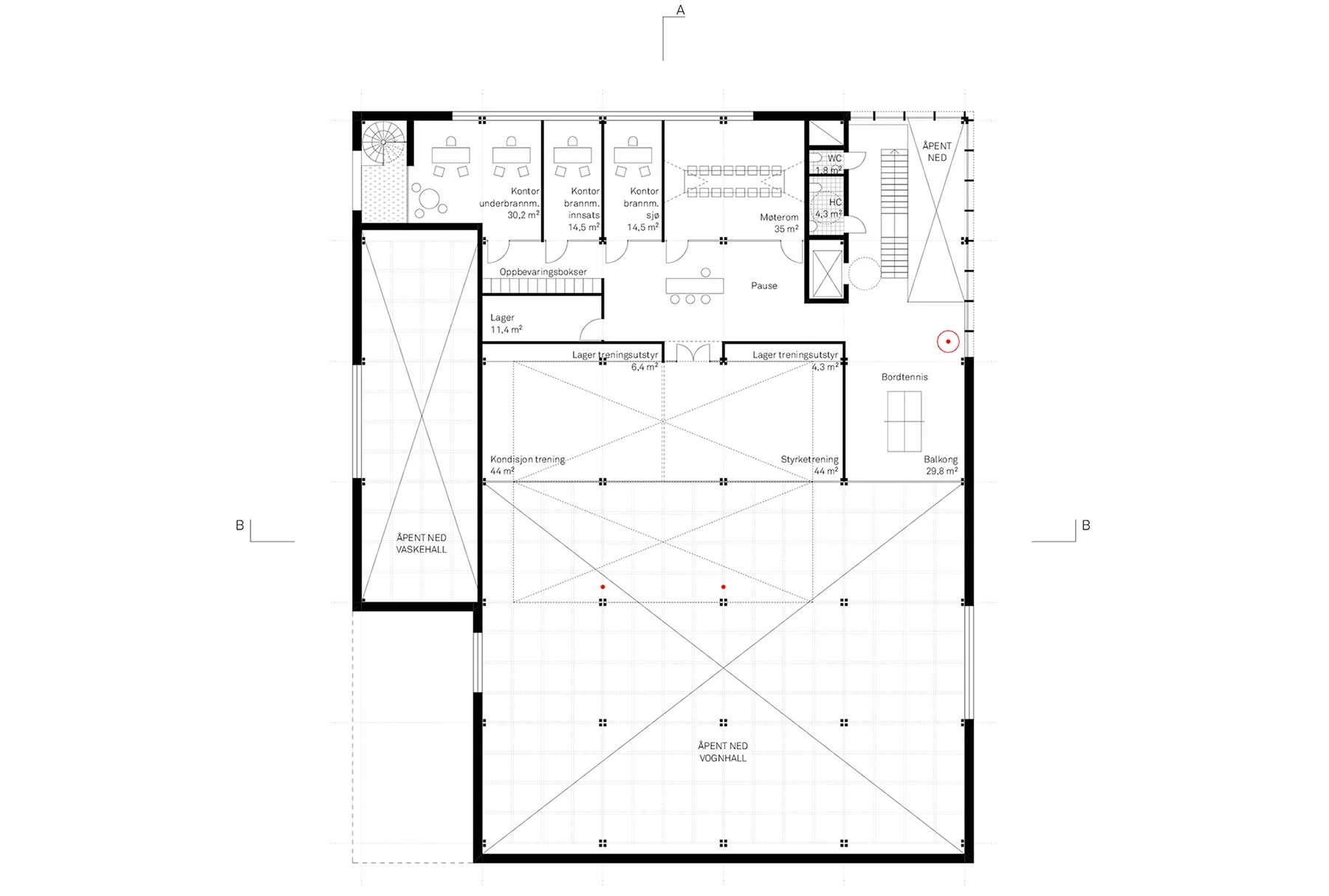
Konkurransebidrag for ny Brannstasjon i Bjørvika.
Sted: Bjørvika, Oslo
År: 2020
Status: Konkurranse
Samarbeid med Quique Bayarri (https://qbayarri.com)