Holmenveien
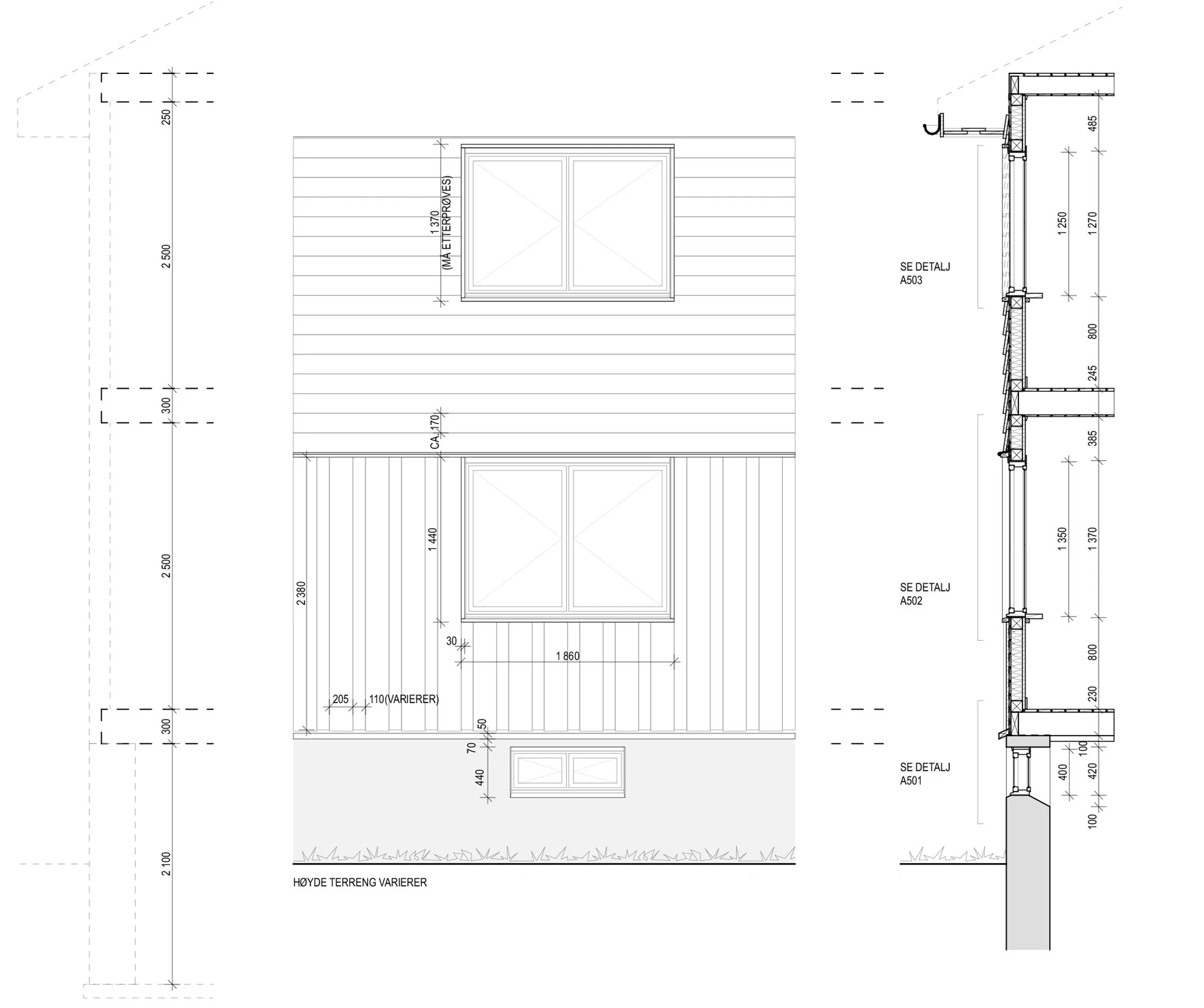
Utvendige arbeider og bruksendring ved totalrenovering av kommunalt listeført enebolig.
Sted: Holmenveien, Oslo
År: 2023
Status: Ferdigstilt
Oppdragsgiver: Privat
Utvendige arbeider og bruksendring ved totalrenovering av kommunalt listeført enebolig.
Sted: Holmenveien, Oslo
År: 2023
Status: Ferdigstilt
Oppdragsgiver: Privat